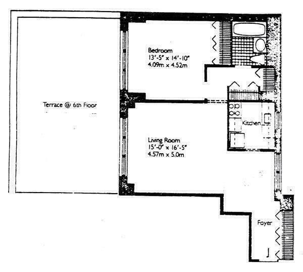
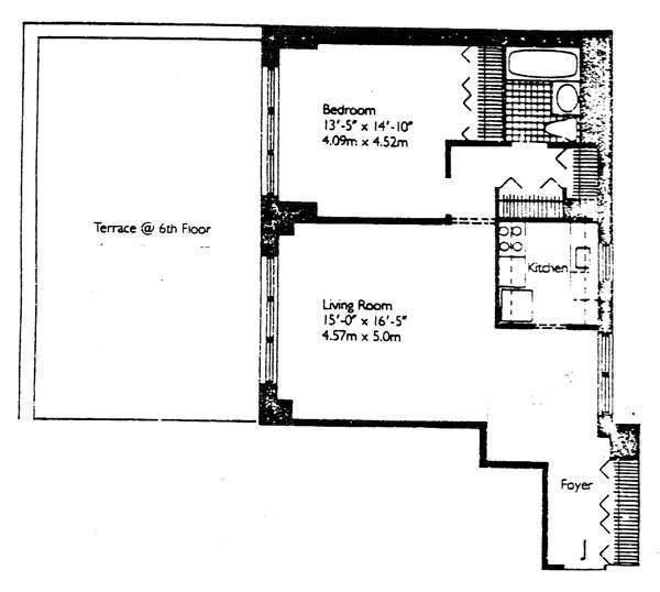
45 West 67th Street
Upper West Side [Central Park West & Columbus Avenue]
Listing ID: 1941808